Wikipedia

Minuteman Missile National Historic Site

Also found in: Acronyms, Encyclopedia.
Minuteman Missile National Historic Site
MinutemanMissileSite.jpg
Visitor Center
Map showing the location of Minuteman Missile National Historic Site
Map showing the location of Minuteman Missile National Historic Site
Map showing the location of Minuteman Missile National Historic Site
Map showing the location of Minuteman Missile National Historic Site
LocationJackson County and Pennington County, South Dakota, U.S.
Nearest cityWall, South Dakota
Coordinates43°55′52″N 102°09′38″W / 43.93111°N 102.16056°W
Area15 acres (6.1 ha)[1]
EstablishedNovember 29, 1999
Visitors59,389 (in 2011)[2]
Governing bodyNational Park Service
WebsiteMinuteman Missile National Historical Site
Minuteman Missile NHS.jpg
A view of the silo from above
Area1.6 acres (0.65 ha)
NRHP reference No.01000275[3]
Added to NRHPNovember 29, 1999

The Minuteman Missile National Historic Site was established in 1999 to illustrate the history and significance of the Cold War, the arms race, and intercontinental ballistic missile (ICBM) development. This National Historic Site preserves the last remaining Minuteman II ICBM system in the United States.[4] 450 of the newer Minuteman III missiles are still on active duty at Malmstrom AFB, Montana, Minot AFB, North Dakota, and F. E. Warren AFB, Wyoming.

Facilities

This National Historic Site consists of three facilities: a main office and two significant Cold War-era sites, a launch control center and a missile silo/launch facility, formerly operated by the 66th Strategic Missile Squadron of the 44th Strategic Missile Wing, headquartered at Ellsworth Air Force Base in Rapid City, South Dakota. The facilities represent the only remaining intact components of a nuclear missile field that once consisted of 150 Minuteman II missiles, 15 launch-control centers, and covered over 13,500 square miles (34,964.8 km2) of southwestern South Dakota.[4]

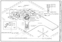
The silo, known as launch facility Delta Nine (D-09) was constructed in 1963. It occupies 1.6 acres (6,000 m2) nearly one-half mile (800 m) southwest of Interstate 90 at Exit 116 and six miles (10 km) from the town of Wall, South Dakota, in eastern Pennington County. It consists of an underground launch tube ("missile silo") 12 feet (3.7 m) in diameter and 80 feet (24.4 m) deep, made of reinforced concrete with a steel-plate liner. An unarmed missile is on display inside. The launch tube's 90-ton cover has been rolled partly away and welded to the rails it rides on. The launch tube was then covered with a glass viewing enclosure. Not only does this permit visitors to see the missile, it means Russian satellites are able to verify that the site is not operational, and hence in compliance with the Strategic Arms Reduction Treaty. Because the only way to get to the underground part of the site is by a ladder 30 feet (9.1 m) long, tours are not conducted underground for safety reasons. Visitors can conduct self-guided tours of the site during the day by calling a number on their cell phones and walking around the site, listening to the description of various points over the phone.

The launch control facility, known as Delta One (D-01), is about 10.5 miles (16.9 km) away, to the east-southeast in northwestern Jackson County. It occupies approximately six acres (24,000 m2) about 1.7 miles (2.7 km) north of I-90 at Exit 127. It consists of an above-ground building containing a kitchen, sleeping quarters, offices and life-support equipment. Below this building is the actual launch control center, buried 31 feet (9.4 m) deep, connected to the building by an elevator. Guided tours are conducted underground here, but are limited to six people at a time due to the very small underground launch control center ("capsule") and are a half-hour long. Self-guided tours are not possible here; the gate for the fence around D-01 is always locked, just like it was when it was an active launch control facility.

History

The complex, one of six located in the central United States, was built as a deterrent to a nuclear first strike by the Soviet Union. By placing missiles underground in widely separated locations, it was hoped that regardless of the size of a Soviet missile attack, enough US missiles would survive to ensure devastation on the aggressor nation. The Minutemen in this complex remained on alert for nearly 30 years until the wing was deactivated following the signing of the Strategic Arms Reduction Treaty (START) by President George Bush and Soviet leader Mikhail Gorbachev in 1991. Under the terms of the treaty, the missiles in this complex were removed from their silos, and in 1994 the 44th Missile Wing was deactivated. All sites in the complex, except D-01 and D-09, have been destroyed.[4]

D-01 and D-09 were candidates for becoming a national historic site for a few reasons:

  • close to a major road (Interstate 90)
  • close to existing recreational facilities (Badlands National Park, Mount Rushmore)
  • the sites saw limited modification since they were built in the 1960s (true of all sites in the 44 SMW).

The Minuteman Missile National Historic Site was the subject of a 2013 federal law – Minuteman Missile National Historic Site Boundary Modification Act (S. 459; 113th Congress) – which granted the park additional land.[5]

Gallery

See also

  • List of museums in South Dakota
  • Ronald Reagan Minuteman Missile State Historic Site
  • Titan Missile Museum
  • Quebec-One Missile Alert Facility
  • Strategic Air and Space Museum – Museum collection includes Minuteman II, Minuteman III, and Titan II re-entry vehicle shrouds and launch control systems on display.
  • Strategic missile forces museum in Ukraine – Similar museum in the former Soviet Union

References

  1. ^ "Listing of acreage as of December 31, 2011". Land Resource Division, National Park Service. Retrieved 2012-05-13.
  2. ^ "NPS Annual Recreation Visits Report". National Park Service. Retrieved 2012-05-13.
  3. ^ "National Register Information System". National Register of Historic Places. National Park Service. July 9, 2010.
  4. ^ a b c "Minuteman Missile National Historic Site". National Park Service. Retrieved 2012-11-09.
  5. ^ "S. 459 – Summary". United States Congress. Retrieved 13 September 2013.

External links

This article is copied from an article on Wikipedia® - the free encyclopedia created and edited by its online user community. The text was not checked or edited by anyone on our staff. Although the vast majority of Wikipedia® encyclopedia articles provide accurate and timely information, please do not assume the accuracy of any particular article. This article is distributed under the terms of GNU Free Documentation License.

Copyright © 2003-2025 Farlex, Inc Disclaimer
All content on this website, including dictionary, thesaurus, literature, geography, and other reference data is for informational purposes only. This information should not be considered complete, up to date, and is not intended to be used in place of a visit, consultation, or advice of a legal, medical, or any other professional.